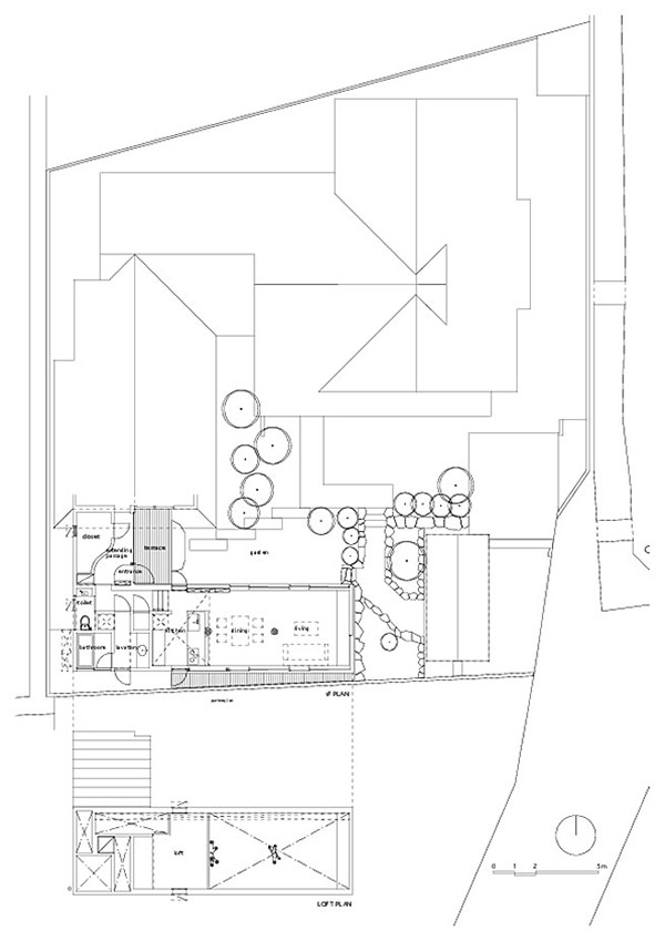
¿Alguna vez te has imaginado tener un arbol dentro de tu casa? En este estudio de Japón, no solo lo han imaginado sino que lo han hecho realidad con su «Garden Tree House». El proyecto es de la empresa Hironaka Ogawa & Associates de Kagawa, (Japón).
En la zona del salón se han introducido dos arboles de suelo a techo, y se ha adaptado la estructura de la casa. Nos imaginamos una mesa de comedor Muscani entre esos dos arboles, señores japoneses, denle el toque final a esta casa con producto 100% español!:)





